阳江市综合文化中心
阳江市综合文化中心位于阳江市漠阳湖公园北侧,基地环境优美视线开阔。项目集合了阳江市档案馆、党史馆、方志馆、名人馆、博物馆、规划馆及工人文化宫等多个机构与功能,它为周边社区注入全新的活力,成为阳江市新城区的文化地标。
1.功能复合与共享集约新模式
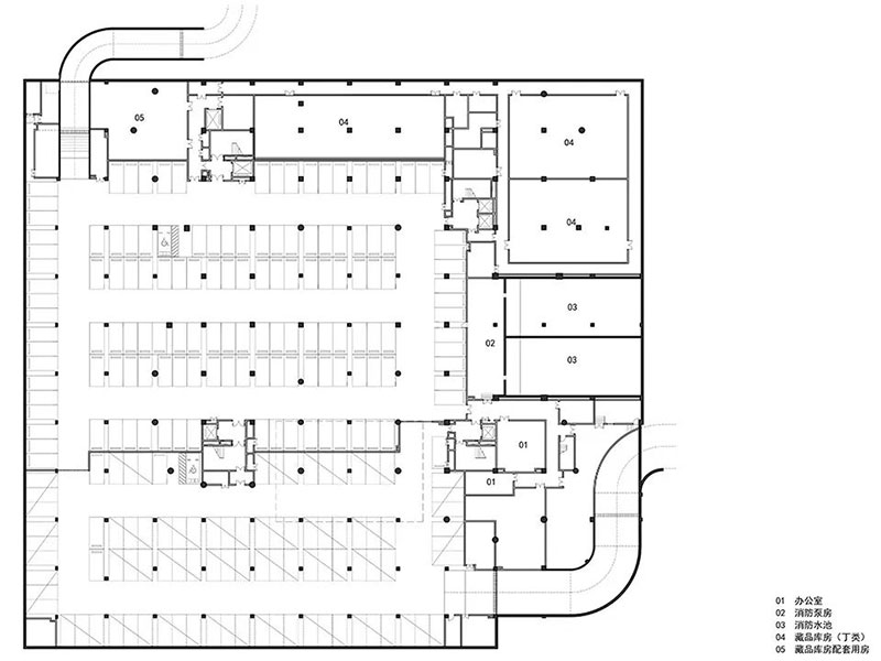
阳江市综合文化中心采用功能复合、共享集约的设计策略,通过将7个独立运营机构集中在文化中心建筑内,环绕共享中庭布置,形成7馆合1的复合型的文化综合体布局,既为市民带来了丰富的空间体验,又通过集中的服务管理缩短流线、节约用地、表面积与空调能耗,减少公共配套资源浪费,创造了国内小城市文化综合建筑集约建设的新模式。
2.激发社区活力的开放平台
我们希望文化中心不仅被设计为新区的地标,也能成为与周边公园共享、为市民提供多重体验活力场所。建筑基座通过绿化平台的手法向漠阳湖公园延展打开,平台上设置尺度宜人的平缓草坡,建筑基座部分融合如咖啡、书吧、工人文体活动等功能。
市民可以随意进入、停留、休息,结合平台上的观赏植物与条石座阶的设计,市民不但可远观漠阳湖景和河流景色的全景视野,也可在平台上实现各种社交活动,各得其所又不干扰。绿化平台承载多样活动,成为漠阳湖公园的一部分,将文化中心和公园的人与活动连为一体,使建筑从封闭的传统文化公共建筑变成平时向社区开放的活动场所,激发新城区的社区活力。
3.融合参数化设计的被动式建筑
方案结合亚热带滨海地区高太阳辐射、炎热潮湿气候的特征,采用多项被动式建筑设计措施降低建筑运营能耗,包括:
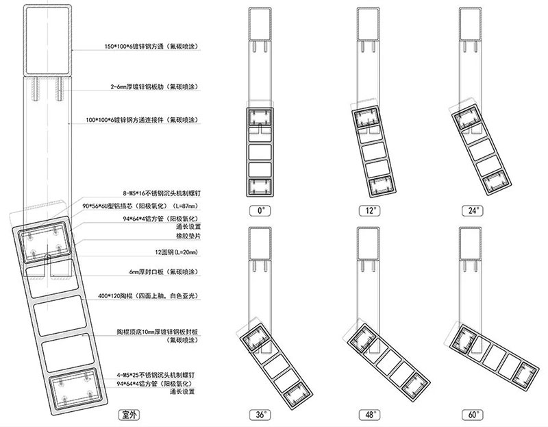
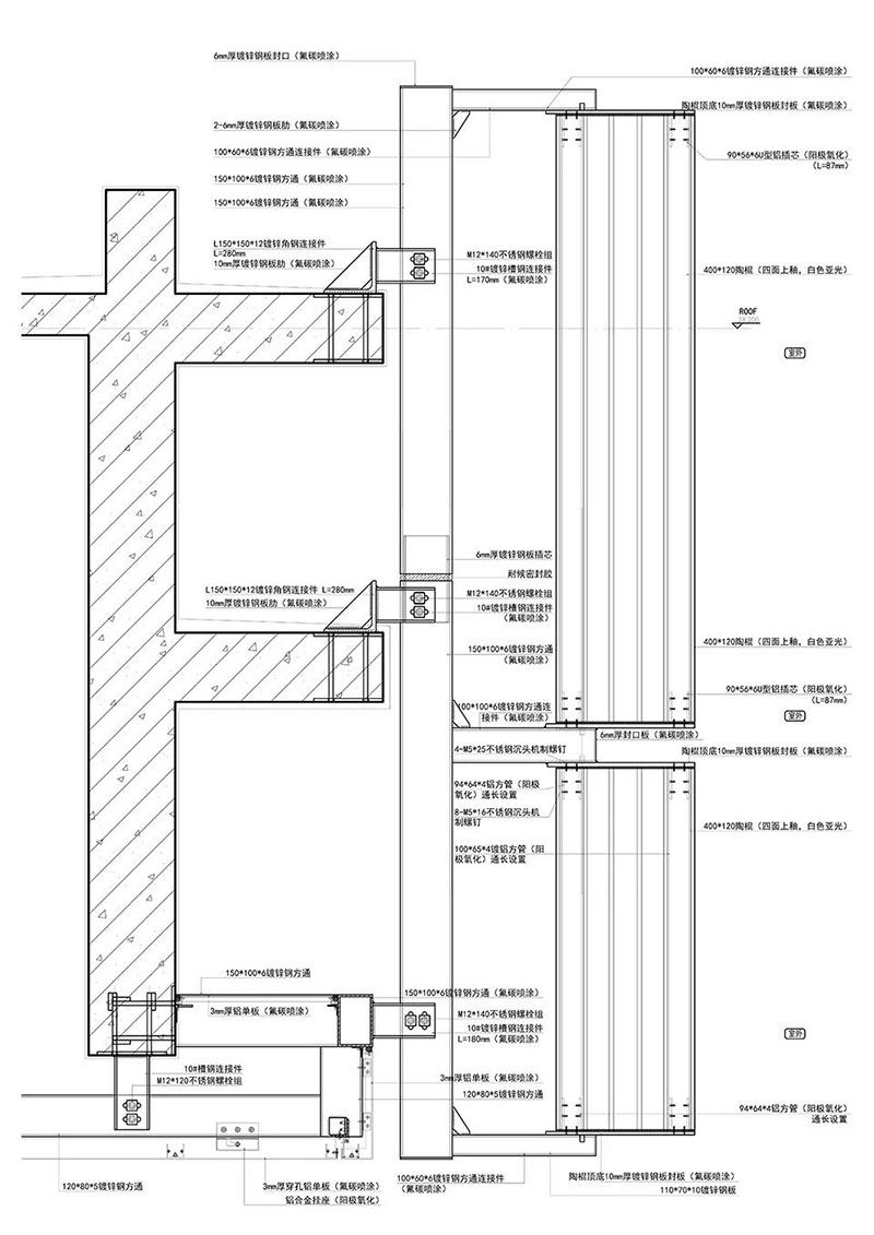
立面的竖向遮阳陶棍是项目设计的重难点,主创团队设计了具有独创专利的大型复合陶棍遮阳系统,结合建筑各方向立面的阳光照射角度、辐射强度模拟计算,采用参数化的定位控制使陶棍在立面上形成不同角度、高度的变化,在各个方向实现最佳的遮阳、隔热和采光效果。
建筑采用有利于通风降温的被动式布局,夏季南向海风经过湖面降温,为建筑带来清凉的空气,降低文化馆内外环境温度;建筑设计有通风中庭、主导风向开口与立面开窗,春秋季过渡季节可采用自然通风,大幅降低运营能耗。基座覆土绿化即屋顶花园,除可作为生物滞留区域外,也设置雨水收集装置可用于景观植物灌溉,实现海绵城市的生态可持续性。
4.山海相融的地域文化特色
山相融的环境是阳江市最显著的地理特征,文化中心建筑造型从阳江的山海城市特征与文化中汲取灵感,建筑设计了上部体量海洋意象的白色建筑主体和下部抽象山川元素的绿色平台,以及象征自然的流动曲线造型,形成了文化中心独特的山海地域特色。
文化中心微妙的平面外形与立面轮廓控制,令使用者环绕建筑时随着视角的变换,可体验到不同朝向各不相同的形体与高低起伏的轮廓变化。而参数化的立面陶棍肌理,在阳光的照射下带来丰富而充满动感的光影变化,远观彷如微风吹动的风帆与波浪,展现这阳江滨海城市的地域特色与文化自信。
项目名称:阳江市综合文化中心
项目地址:广东省阳江市江城区四围大道250号
项目类型:公共建筑、文化建筑
设计公司:华南理工大学建筑设计研究院有限公司+一方设计集团有限公司
公司网站:https://www.scutad.com.cn/
联系邮箱:youtharchitects@126.com
项目设计:2019.10-2020.08
完成年份:2023.09
主创设计师:丘建发、包莹
设计团队:主创设计师:丘建发包莹
设计团队:姜帆、黄文耀、郭远翔、何世铁、莫朝晖、郭远翔、林亮洪、易翠、李恺欣、谭丹萍、曾宪策、肖鹏飞、杨毅、王人玉、蒋耀辉、岑洪金、杜京京、莫理莉、曾志雄、李旭凯、林嘉瑜
占地面积:8645㎡
建筑面积:35634㎡
业主单位:阳江市代建项目管理局
室内设计:东三室内设计工作室
幕墙设计:雅众幕墙科技有限公司
材料商:乐普陶艺





