华南国家植物园云溪迁地保护示范区——花城艺术馆
缘起
项目位于华南国家植物园迁地保护示范区,是以岭南花卉历史为主题的展览馆。为广州市民提供艺术展览、游憩观赏、感受文化艺术等功能的场所。建筑室外融合岭南特色香花植物,结合白云山培育及引种的优质花卉品种进行季节性的展示,打造富有广州花城特色的精品花园游赏体验。项目建成后获得2024 Architecture MasterPrize 美国建筑大师奖 (休闲娱乐建筑),获得2024年度广州市工程勘察设计奖公共建筑一等奖。
设计理念
花城艺术馆建筑建筑凸显广州花城特色,造型灵感来自于古南越国国花“素馨花”,设计为白色圆弧形建筑,在凸显百花轻柔之美的同时,实现对周边优美风景的最大利用。场地三面环山,西侧有开阔的户外聚会草坪空间与保留的古香樟树。建筑为保持园林化的尺度,避免对周边环境造成压迫,采用退让的姿态将主体功能隐藏于半地下,既衔接群山环抱的地形条件,又以集中式圆形的建筑形态与香樟树对话,与树木共同组成优美的画面与焦点。
建筑轻盈漂浮于场地之中,采用水平向轻柔的曲线与场地相接,呈现出轻柔平静的状态,体现出建筑的静态美。
建筑立面传承岭南园林建筑轻盈通透、与景观融合的特点,采用轻薄的中空屋顶、钢结构和落地式玻璃幕墙的立面,将建筑外的天空、香樟树、花境等自然环境引入建筑中。同时,玻璃幕墙外的金属圆杆,展现了充满韵律光影与朦胧含蓄之美,以现代的材料构造实现创新。
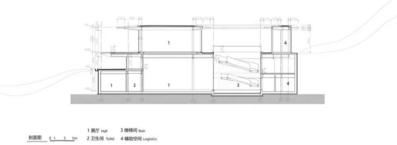
功能布局
建筑入口广场设在场地西侧,可观赏到建筑与保留古樟树相互映衬的画面。从首层门厅与临时展厅进入,沿着室外庭院布置的台阶拾级而下,可到达负一层的岭南花卉展览馆序厅,序厅东侧的下沉庭院将自然光引入到室内。从序厅往下则到达通高6米的主展厅,黑白灰为主的色彩结合两侧庭院与高窗的自然光线,营造出简约、灵活、充满光影意趣的展陈空间。观展流线的出口正对古香樟树,游客结束游览后可继续在户外景区活动。
气候适应性
项目采用多项适应岭南气候的被动式节能手段:建筑整体采用半地埋式布局减少空调能耗;屋顶采用深远的挑檐,结合立面垂直白色的圆管遮阳,可减少立面太阳辐射热量;下沉小庭院在为室内补充自然光的同时,起到类似岭南建筑天井拔风的作用,有利于地下展馆的空气调节。
项目中庭自然形成一个圆形,与山景形成框景的关系,游客置身其中可感受到自然的山与天空的联系。中庭楼梯采用无柱结构,自上而下形成一个富有力量巨型的雕塑,与建筑轻柔之美形成一种强有力的对比。
后记
项目落成以来获得市民的广泛认可,成为公园游览中的重要休闲科普场所。项目首层设有休憩区,可较好融入场地让市民在观景休憩的时候展开自然的交流。负一层负二层设有岭南花卉历史展览区,不同尺度的展览空间让布展灵活布置,展览区延续建筑圆形的主题设计,形成多个圆形展区,为市民呈现令人印象深刻的展览体验。
项目名称:华南国家植物园云溪迁地保护示范区——花城艺术馆建筑设计
项目类型:展览建筑
设计方:华南理工大学建筑设计研究院有限公司,广州园林建筑规划设计研究总院有限公司
公司网站:https://www.scutad.com.cn/
联系邮箱:429790541@qq.com
项目设计:2020-12
完成年份:2022-12
设计团队:丘建发、何小欣、张瀚、李青、林兆涛、陈广成、江毅、范丽琼、刘颖棠、谭婷婷、林琳、钟日明、李青、林乐斌、黄璞洁、何耀炳、张邦图、范细妹、黄光伟、李耿吉、岑洪金、钟文勇、王建伟、汤振艺、肖晓、郑存宏、吴琨、黄欣宁。
项目地址:华南国家植物园迁地保护示范区云溪植物园
建筑面积:3563 ㎡
摄影版权:九里、徐勉、邓玉意、张瀚
合作方:广州普邦园林股份有限公司
客户:广州市林业和园林局
外立面主要用材:白色铝板、水泥纤维板、不锈钢圆管、LOW-E玻璃





